Líderes en construcción modular con soluciones estándar y personalizadas Reducción de tiempos de construcción Mayor control del proyecto Construcción flexible y más sostenible
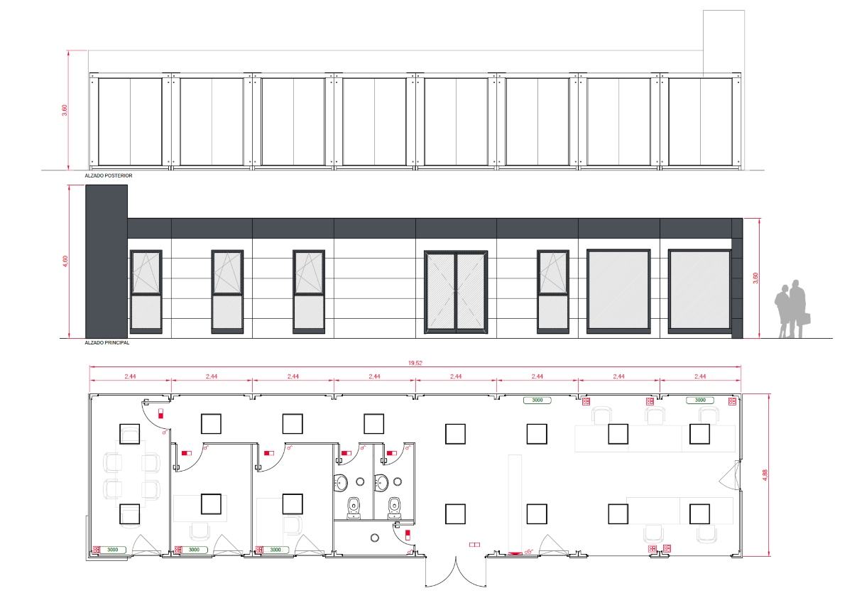
En unas instalaciones que ocupan una gran extensión, con naves cubiertas para transformación de los materiales que comercializan, necesitan una oficinas independientes que incluyan una sala de reuniones, dos despachos independientes, una gran área común para varias personas, así como una sala técnica y sus aseos correspondientes. Las ventajas de la construcción modular industrializada permiten que un futuro puedan ser reinstaladas en otra ubicación. Adicionalmente y con el objeto de mejorar el aspecto visual exterior se requiere un revestimiento en panel composite de aluminio con un tótem para destacar el logotipo de la compañía
Estructura
Cerramiento Exterior
Cubierta
Carpintería Exterior
Divisiones Interiores
Revestimientos Horizontales
Instalaciones
Aparatos Sanitarios y/o Accesorios
Más proyectos
Nestled in a tranquil, tree-lined setting, this estate offers elegant homes crafted with sustainability and comfort in mind.
These luxury condominiums architectural design with comfort and convenience. Featuring layouts, high-end finishes.
Urban Green Apartments brings modern live and sustainability in an innovative residential space. Located in the heart of the city.
These thoughtfully designed townhomes feature spacious layouts, high-quality finishes, and inviting outdoor spaces.